Vendita
Popolare

Nuovo bilocale Castegnato

150.000
150.000
Screenshot_20230725_100029_com.google.android.apps_.docs_
Screenshot_20230725_100029_com.google.android.apps_.docs-Copia
B1
BOX-B1
Logo-Social-4

Panoramica

  • ID No

    18179
  • Tipologia

    Appartamento
  • Parcheggio

  • Camere

    1
  • Bagni

    1
  • Mq

    60
  • Contratto

    In vendita
  • Posizione

    Castegnato via Mangano
  • Anno di Costruzione

    2024

Descrizione

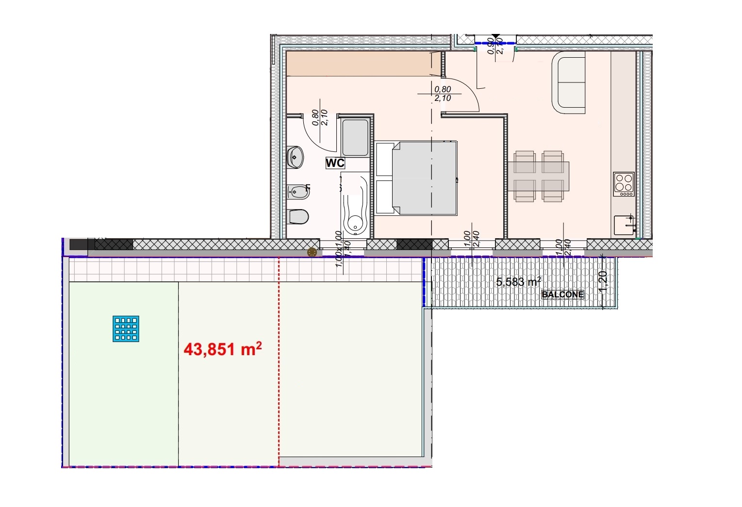
Appartamento in vendita in un nuovo contesto residenziale. Questo bilocale si trova al piano terra e offre un soggiorno con zona cottura, una camera matrimoniale e un servizio finestrato. Inoltre, dispone di un giardino privato e un comodo posto auto coperto nell’interrato.
L’immobile è ancora in costruzione, offrendo la possibilità di scegliere le finiture secondo i propri gusti. Il capitolato è ricco e l’appartamento si trova al piano terra con ascensore.
Ottimo per single, giovani coppie o per investimento.

Caratteristiche

  • Servizi TV via Cavo Aria Condizionata

Posizione

Posizione

via Trebeschi, 37,25045,Castegnato

Planimetria

360° Virtual Tour